P&N Architectes

Réaménagement d'un local à usage d'activité - Intérieur / Extérieur - 75017 Paris

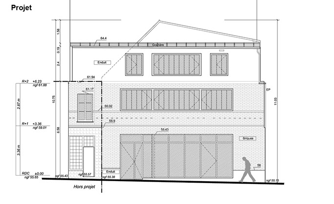
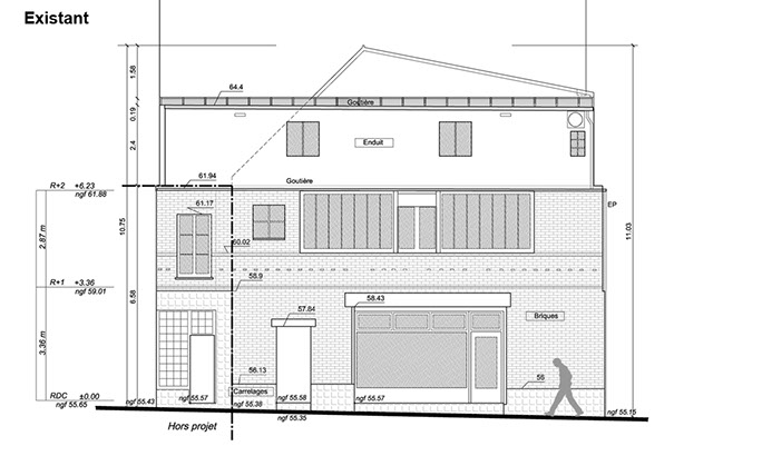
Une reprise de la façade a été proposée il y a quelques années. Cette intervention sera réalisée mais le projet prévoit aujourd’hui la réhabilitation de l’ensemble du local.

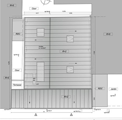
La construction présente trois grands plateaux. Le rez-de-chaussée est éclairé simplement par la façade rue et les étages profitent de petites baies sur l’arrière de la parcelle.

Ainsi le projet prévoit de grands volumes d’open space profitant de la lumière de la façade principale. Les espaces sombres sont dédiés aux locaux services et circulation.

Les salles de réunions ou bureaux isolés sont localisés sur la façade arrière pour profiter des baies qui s’y trouvent mais sont séparés des open spaces par des ouvertures type atelier afin que la lumière traverse l’ensemble du volume.

 

 

 

 

 

 

 

 

Maître d'Ouvrage :

SNC Truchet

Equipe :

P&N Architectes

Site :

Rue Abel Truchet 75017 Paris

Procédure :

Commande privée

Surface :

400 m²

Coût :

750 K€ HT

Réalisation :

En cours d'étude