P&N Architectes

Transformation d'un local commercial en logements - 91200 Athis-Mons

Maître d'Ouvrage :

IMMO INVEST 3A

Equipe :

P&N Architectes

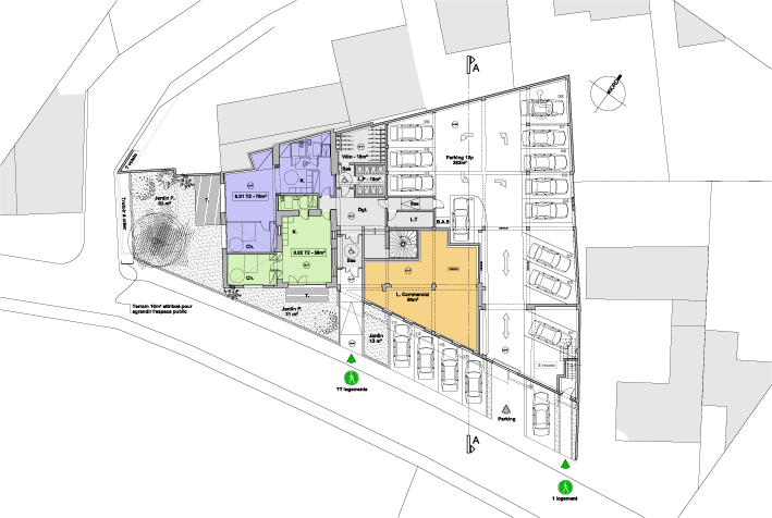
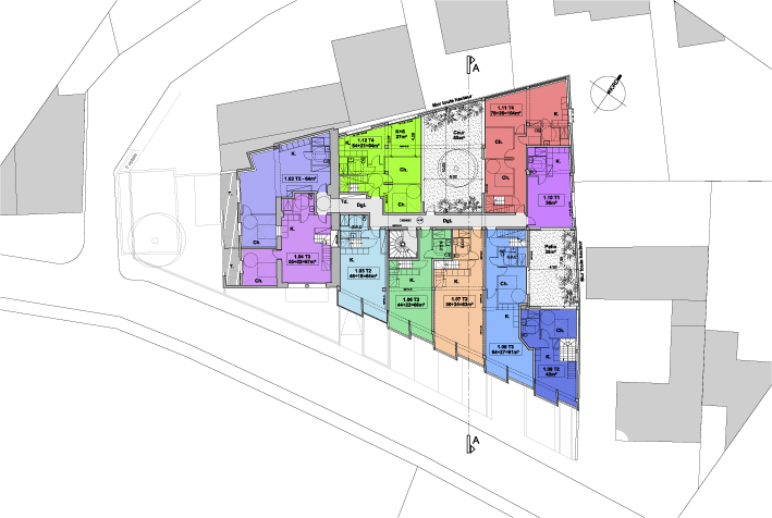
Le projet porte sur la réhabilitation d’un local concessionnaire voitures en immeuble de logements collectifs à Athis Mons (91).

Au cœur d’un quartier pavillonnaire, l’objectif est de ne pas densifier la parcelle en réaménageant la construction existante.

La contrainte de la trame structurelle impose le développement des logements en peigne autour de deux patios creusés dans le bâtiment. Ces cours intérieures permettent de dédensifier la parcelle, d’apporter de la végétation en cœur de projet et de la lumière dans les logements.

Le caractère de la construction existante et l’originalité de sa façade permet la création de loft s’ouvrant sur l’extérieur par de grands ensembles menuisés type atelier.

Sur la toiture terrasse existante de petites extensions sous forme de « maisons sur le toit » viennent souligner la nouvelle destination, intégrant le projet à son environnement pavillonnaire et offrant des terrasses accessibles aux logements. La toiture vient ainsi s’animer. Les espaces non accessibles seront végétalisés.

 

 

 

 

 

 

 

 

 

 

 

 

Site :

Rue Robert Shuman -  91200 Athis-Mons

Procédure :

Commande privée

Surface :

950 m²

Coût :

NC M€ HT

Réalisation :

En cours d'étude