P&N Architectes

Réfection d'un appartement - Paris 75002

Maître d'Ouvrage :

Privée

Equipe :

Jimmy Pereira Architecte

Site :

Paris 75002

Procédure :

Commande privées

Surface :

105 m²

Coût :

110 K€ HT

Réalisation :

Livré en septembre 2011

Réaménagement d'un appartement (mobiliers) - Maisons-Alfort 94700

Maître d'Ouvrage :

Privée

Equipe :

P&N Architectes

Site :

Maisons-Alfort 94700

Procédure :

Commande privées

Surface :

NC m²

Coût :

30 K€ HT

Réalisation :

Livré en décembre 2014

Réfection d'une loge de gardien d'immeuble - Paris 75018

Maître d'Ouvrage :

ARCO

Equipe :

P&N Architectes

Site :

Paris 75018

Procédure :

Commande privées

Surface :

40 m²

Coût :

60 K€ HT

Réalisation :

Livré en décembre 2019

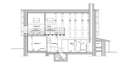
Transformation d'une grange en habitation - 23260 Malleret

Coupe transversale

Plan de masse

Élévation sur rue

Maître d'Ouvrage :

Privée

Site :

Malleret 23260

Equipe :

P&N Architectes

Procédure :

Commande privée

Surface :

85 m²

Coût :

150 K€ HT

Réalisation :

En cours d'étude

Coupe longitudinale

CHANTIER A VENIR

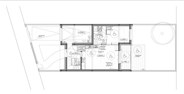
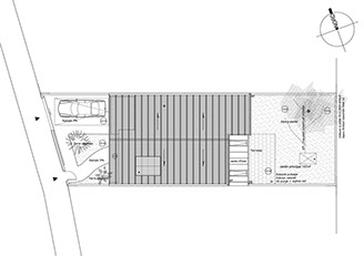
Création d'une maison individuelle PMR - Champigny sur Marne

Plan de masse

Élévation sur rue

Élévation sur jardin

Maître d'Ouvrage :

Privée

Equipe :

Jimmy Pereira Architecte

Site :

Champigny sur Marne 94500

Procédure :

Commande privée

Surface :

120 m²

Coût :

370 K€ HT

Réalisation :

2014 - Projet sans suite

Rez de chaussée

Étage

Réfection des combles d'une maison individuelle - Maisons-Alfort 94700

Maître d'Ouvrage :

Privée

Equipe :

P&N Architectes

Site :

Maisons-Alfort 94700

Procédure :

Commande privée

Surface :

90 m²

Coût :

80 K€ HT

Réalisation :

Livré en septembre 2015

Réfection d'un appartement - Maisons-Alfort

Maître d'Ouvrage :

Privée

Equipe :

Jimmy Pereira Architecte

Site :

Maisons-Alfort 94700

Procédure :

Commande privée

Surface :

60 m²

Coût :

90 K€ HT

Réalisation :

2010