P&N Architectes

Aménagement de 780 m² de bureaux - Paris 75010

Maître d'Ouvrage :

Oralia - Faÿ & Cie

Site :

105, rue Lafayette- Paris 75010

Equipe :

P&N Architectes

Procédure :

Commande privée

Réalisation :

En cours d'étude

Estimation travaux :

1.2 M€ HT

CHANTIER A VENIR

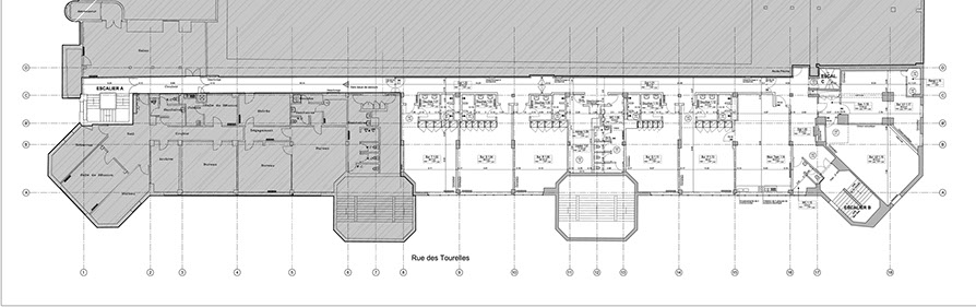
1 er étage

Rez-de-chaussée

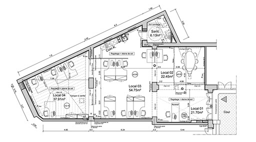
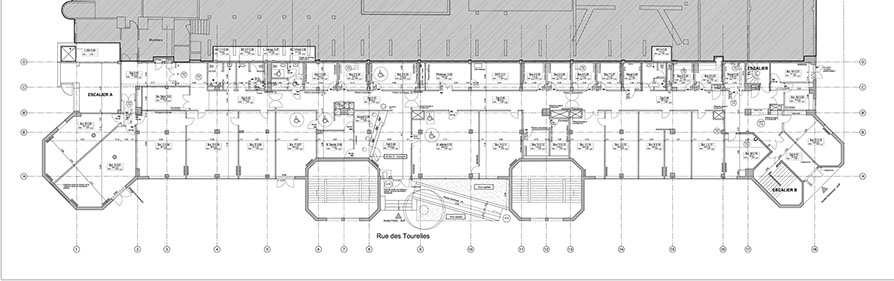
Création de 2 locaux vélos VAR - Cergy Préfecture

Maître d'Ouvrage :

ASCCA C/O NEXISTY

Site :

Place des Arts Cergy-Pontoise 95027

Equipe :

P&N Architectes - PARICA BET TCE

 

Réalisation :

2019

Aménagement d'un atelier de 150 m² - Paris 75010

Maître d'Ouvrage :

Oralia - Faÿ & Cie

Site :

105, rue Lafayette- Paris 75010

Equipe :

P&N Architectes

Procédure :

Commande privée

Réalisation :

En cours d'étude

Estimation travaux :

240 K€ HT

CHANTIER A VENIR

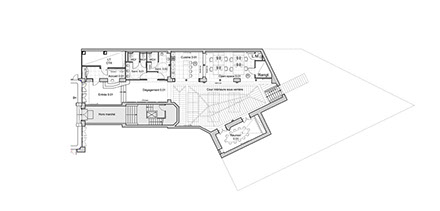
Aménagement d'un local d'archives en sous-sol - Paris 75016

Maître d'Ouvrage :

Privé

Equipe :

P&N Architectes

Site :

Paris 75016

Procédure :

Commande privée

Estimation travaux :

70 K€ HT

Réalisation :

Livré en 2017

Aménagement de 1200 m² de bureaux - Neuilly sur Seine

Maître d'Ouvrage :

Privé

Equipe :

EIFFAGE CONSTRUCTION

Île-de-France - Résidentiel et Fonctionnel

Jimmy Pereira Architecte

Site :

Boulevard du Parc - Neuilly sur Seine 92200

Procédure :

Consultation sur dossier jusqu'au DCE

Réalisation :

2015

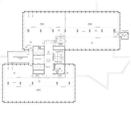
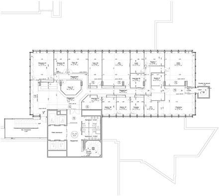
Plan du R+8

Plan du R+6

Aménagement de 4800 m² de bureaux - Paris 75002

Maître d'Ouvrage :

Mairie de Paris

Equipe :

PARICA BET TCE

Jimmy Pereira Architecte

Site :

Rue Réaumur - Paris 75002

Procédure :

Consultation sur dossier jusqu'au DCE

Réalisation :

2011

Niveaux Type - 5 niveaux

Aménagement de 1700 m² de bureaux - Paris 75020

Maître d'Ouvrage :

Département de Paris

Direction du Patrimoine et de l'Architecture

Equipe :

PARICA BET TCE

Jimmy Pereira Architecte

Site :

Piscine Georges Vallerey - Paris 75020

Procédure :

Consultation sur dossier jusqu'au DCE

Réalisation :

2011

Plans du RDC / R+1